Property Image 1
1/7
£150K
Size not specified

Plot for sale

Size not specified
development
available
freehold

Description

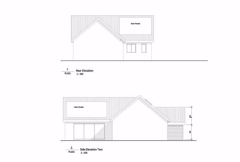
** SINGLE BUILDING PLOT ** PLANNING APPROVED FOR SELF BUILD BUNGALOW ** PERMISSION GRANTED JANUARY 2026 ** REFERENCE NO: 24/00815/FUL ** HEART OF THE VILLAGE LOCATION ** WALKING DISTANCE TO LOCAL AMENITIES ** IDEAL DOWNSIZE PROJECT ** HIGHLY REGARDED VALE OF BELVOIR VILLAGE **

Contact Agent

Richard Watkinson & Partners, Bingham

Location

High Street

Plot for sale - £150K | Development for Sale